logo

Trakhees Approval in Dubai

The places like an international city, Jafza, which comes under Trakhees authority. So, in order to take approval for the restaurant, cafeteria, Mazzinian floor, offices, villa modifications, construction of the new villa, steel structures, canopies, cladding works, etc, we need drawing preparation and submission in Trakhees.

We take all kind of approvals that comes under Trakhees, for example, Trakhees approval for mezzanine floor, offices, steel structure works, villa modification works, etc. Call us at +971 52 807 8039 to get all the approval-related works.

Trakhees – The Department of Planning and Development, was established in 2008 as the regulatory branch of the Ports, Customs and Free Zone Corporation in Dubai. Its responsibilities include engineering supervision, the issuance of building permits, the issuance of commercial licenses, and the supervision of all health, safety, and environmental issues within the Special Development Zone in Dubai.

Our Trakhees-approved engineers and draftsmen in our company will do all the drawing preparation work as per the Trakhees guidelines. After the submission in the Trakhees portal, if any comments come from the authority, our qualified engineer will attend the online meeting to clarify the comments and get the final building permit.

We are part of the Blue Square Group of companies. We are also having Trakhees approved contracting company Four Square steel construction contracting LLC to do all kinds of fit-out works, office works, mezzanine works, all kinds of steel structural works, etc.

Why Trakhees approval is required in Dubai?

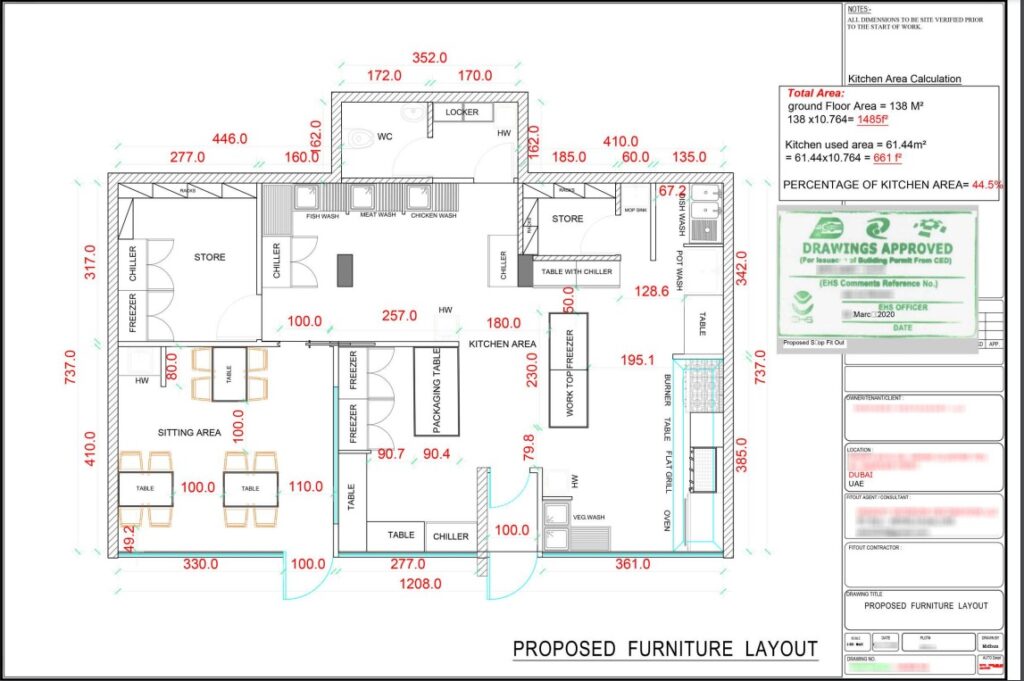
The phases like an international city like Jafza, which comes under Trakhees authority, we need to get Trakhees approvals to start a new business and to modify the existing business. For example, such as to start a cafeteria, clinic fit out etc. We also required Trakhees approval for the partition of an office.

 To start a new business in Dubai like office, mezzanine floors in a warehouse, or kitchen approvals. We can do the design and complete drawings to submit in the Trakhees approval in Dubai. For more information, please call +971 528078039

Necessary documents required to get Trakhees approval in Dubai

When we apply for any approvals, we required standard documents to be submitted by the client. example of some standard documents are follows: –

  • NOC documents
  • NOC letter
  • Affection plan
  • As build in drawings

For more information, please call +971 52 807 8039

Approval from Trakhees in Dubai
Trakhees Approval Service in Dubai

What is the fee structure to get the Trakhees approval in Dubai?

There are different type of fees structure in Trakhees. In some cases contractor deposit also required before starting the work. Fee structure mainly depends on area of the business you want to setup or modify. For more information contact us on +971 52 807 8039

 Regulations and Guidelines for Trakhees Approval 


The only goal of the Trakhees Guidelines and Regulations is to create ecologically friendly, sustainable development.   The following are some of the areas where Trakhees has established rules:

Building regulations and Trakhees-approved design principles. The minimal architectural and Structural Design standards for the development of commercial, residential, and industrial projects are set forth in this guideline.

FAQ

Do you provide Trakhees approval?

Yes, we provide all type of Trakhees approval. Such as restaurant, cafeteria, Mazzinian floor, offices, villa modifications, construction of the new villa, steel structures, canopies, cladding works, etc.

What is the fee structure for the Trakhees?

There are different type of fees structure in Trakhees. In some cases, contractor deposit also required before starting the work. Fee structure mainly depends on area of the business you want to setup or modify.
For more information contact us +971 528078039

What all documents are required for Trakhees?

·       NOC documents
·       NOC letter
·       Affection plan
·       As build-in drawings
For more information, please call +971 52 807 8039

Can we get Trakhees approval easily?

If we submit all drawings in proper format as per Trakhees guide lines we can get approval without any further comments. Our specialized submission engineers will help you to get the approval quickly to start your business in Dubai.

Trakhees Approval in Dubai

Disclaimer
We are not a government entity, but we are an approved contractor. The views expressed on this website are our own and do not necessarily reflect the views of the government.

Open Whatsapp
Welcome to ApprovalsinDubai. How can we help you?